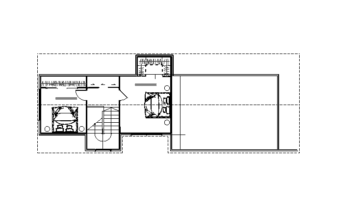
3 Bedroom Modern Stacker

$2,495.00

Concept Design Price – $2,495

Key Features

🛏 3 Bedrooms  

🚿 1 Bathroom  
🚽 1 Toilet  
🛋 Open-plan Living  
📐 154.5m²

Estimated Build Price: Available on request

This estimate allows for builders’ margins, project contingency, GST, and a full fit-out including acoustic floors, all external shading features, and full kitchen and bathroom fit-outs. It excludes design, planning, consent, and consultant costs. The estimate is based on a flat site in the Auckland region with good ground conditions and excludes site works and site services.

Eligible for Homestar 6 interest-rate reductions on your mortgage — 0.7 % off fixed interest rates and 1 % off floating interest rates.

Download the Free Floor Plan Book here

Overview

This design is part of the Small Smart Spaces collection — compact, efficient, and designed with people and planet in mind. It balances affordability, performance, and comfort, while offering a more spacious layout suitable for couples, small families, or anyone seeking an energy-efficient small home design in New Zealand that combines style, quality, and a smaller footprint.

How Does This Design Compare to a Code-Compliant Version?

Power Use — Reduced from 56.5 kWh/m²/year to 15.8 kWh/m²/year

🌡 Overheating — Reduced from 15.9 % to 6 %

Performance

Every Small Smart Space starts at Homestar 6 levels of performance and is Homestar and Passive House certifiable. That means a healthier home, lower power bills, and long-term comfort.

High-performance features include:

  • SIP (Structural Insulated Panel) construction for speed on site and improved thermal performance

  • High-performance windows and doors designed for New Zealand conditions

  • Ventilation system providing fresh, filtered air and heat recovery for reduced power bills

  • Efficient space and water heating considerations for optimal energy use

  • PV-ready design, allowing easy pairing with solar panels for ultra-low energy consumption

  • Low-maintenance, durable finishes ensuring long-term affordability and minimal upkeep

Why Choose This Design

This home suits people who value a smaller footprint and a healthier, more efficient lifestyle. It provides the comfort of a high-performance home without unnecessary size or cost, and maximises usable space for everyday living. The design reduces waste in construction, supports affordability, and keeps running costs low.

When you choose a Small Smart Space, you deal directly with Sharon — the designer — ensuring your questions are answered, your needs are understood, and your project receives a personal touch from start to finish.

Customization

The pre-design concept is set for efficiency and cost certainty, however customization options are available to make your chosen Small Smart Space work uniquely for you.

Project Fit

Perfect for:

  • Homeowners seeking a right-sized, energy-efficient home with three bedrooms

  • Projects where offsite construction and faster build times are an advantage

Next Step

Download the brochure to learn more about how Small Smart Spaces work.

Prefer to talk it through? Book a chat to discuss your project directly with Sharon, the designer of Small Smart Spaces.

The Product

This initial set of drawings is for Concept Design.

Included in this package:

  • Furniture layout concept plan

  • Dimensioned floor plans showing general sizes in metric and imperial units

  • 4 × Design elevations

  • Design sections

  • Exterior door and window schedule (in metric and imperial)

  • 4 × Exterior perspectives

  • 4 × Interior perspectives

  • Outline specification

  • 3D interactive virtual model

Concept Design Price – $2,495

Key Features

🛏 3 Bedrooms  

🚿 1 Bathroom  
🚽 1 Toilet  
🛋 Open-plan Living  
📐 154.5m²

Estimated Build Price: Available on request

This estimate allows for builders’ margins, project contingency, GST, and a full fit-out including acoustic floors, all external shading features, and full kitchen and bathroom fit-outs. It excludes design, planning, consent, and consultant costs. The estimate is based on a flat site in the Auckland region with good ground conditions and excludes site works and site services.

Eligible for Homestar 6 interest-rate reductions on your mortgage — 0.7 % off fixed interest rates and 1 % off floating interest rates.

Download the Free Floor Plan Book here

Overview

This design is part of the Small Smart Spaces collection — compact, efficient, and designed with people and planet in mind. It balances affordability, performance, and comfort, while offering a more spacious layout suitable for couples, small families, or anyone seeking an energy-efficient small home design in New Zealand that combines style, quality, and a smaller footprint.

How Does This Design Compare to a Code-Compliant Version?

Power Use — Reduced from 56.5 kWh/m²/year to 15.8 kWh/m²/year

🌡 Overheating — Reduced from 15.9 % to 6 %

Performance

Every Small Smart Space starts at Homestar 6 levels of performance and is Homestar and Passive House certifiable. That means a healthier home, lower power bills, and long-term comfort.

High-performance features include:

  • SIP (Structural Insulated Panel) construction for speed on site and improved thermal performance

  • High-performance windows and doors designed for New Zealand conditions

  • Ventilation system providing fresh, filtered air and heat recovery for reduced power bills

  • Efficient space and water heating considerations for optimal energy use

  • PV-ready design, allowing easy pairing with solar panels for ultra-low energy consumption

  • Low-maintenance, durable finishes ensuring long-term affordability and minimal upkeep

Why Choose This Design

This home suits people who value a smaller footprint and a healthier, more efficient lifestyle. It provides the comfort of a high-performance home without unnecessary size or cost, and maximises usable space for everyday living. The design reduces waste in construction, supports affordability, and keeps running costs low.

When you choose a Small Smart Space, you deal directly with Sharon — the designer — ensuring your questions are answered, your needs are understood, and your project receives a personal touch from start to finish.

Customization

The pre-design concept is set for efficiency and cost certainty, however customization options are available to make your chosen Small Smart Space work uniquely for you.

Project Fit

Perfect for:

  • Homeowners seeking a right-sized, energy-efficient home with three bedrooms

  • Projects where offsite construction and faster build times are an advantage

Next Step

Download the brochure to learn more about how Small Smart Spaces work.

Prefer to talk it through? Book a chat to discuss your project directly with Sharon, the designer of Small Smart Spaces.

The Product

This initial set of drawings is for Concept Design.

Included in this package:

  • Furniture layout concept plan

  • Dimensioned floor plans showing general sizes in metric and imperial units

  • 4 × Design elevations

  • Design sections

  • Exterior door and window schedule (in metric and imperial)

  • 4 × Exterior perspectives

  • 4 × Interior perspectives

  • Outline specification

  • 3D interactive virtual model